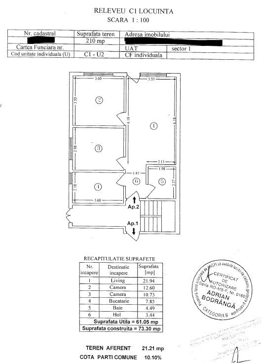
Vand apartament 3 camere 61m2 si curte 58m2 Bucurestii Noi
Vanzare
apartamente
58m²
3 camera(e)
ID Anunt: 712555
Descriere
vand apartament 3 camere 61m2 si curte 58m2 bucurestii noivand apartament 3 camere 61m2 utili 73m2 construiti si curte privata 58 m2 cadastrata si cu acte de proprietate apartamentul beneficiaza de compartimentare optimizata cu spatii de depozitare la parter intrun imobil cu regim de inaltime p2mansarda finalizat in anul 2011 fara risc seismic si costuri mici de intretinerebeneficiaza de acces facil la mijloacele de transport statia de metrou bazilescu 800m 10 min stb tramvai 400m 5minalte puncte de reper parcul bazilescu 300m 4 min piata 16 februarie 250m 3 min scoli in apropriere 192 183 179pentru mai multe detalii si vizionare va stau la dispozitie- Caracteristici 2026-02-25
- Tip tranzactie: Vanzare
- Tip imobil: apartamente
- Numar camere: 3
- Suprafata: 58m²
- Oras: Bucuresti-Ilfov
- Localitate/Adresa: Bucurestii Noi
- Zona: Aeroport
