Garsoniera Urban Rezidence Coresi mall
Vanzare
apartamente
45m²
1 camera(e)
ID Anunt: 722079
Descriere
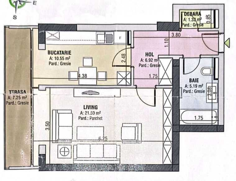
garsoniera urban rezidence coresi mallva propun spre vanzare o garsoniera moderna si foarte bine compartimentata situata in ansamblul urban residence cartier tractorul al doilea bloc de la bulevardul 13 decembrie cu iesire rapida catre coresi shopping resort localizare excelenta zona in plina dezvoltare aproape de magazine restaurante mijloace de transport scoli si spatii verzi detalii proprietatesuprafata utila 45 mpterasa generoasa 7 25 mpboxa inclusa 1 69 mpcompartimentare practicaliving 21 59 mpbucatarie separata 10 55 mphol 6 92 mpdebara 1 32 mpbaie 5 19 mppuncte fortegarsoniera este de 3 ani listata pe booking com in regim hotelier cu un scor de 9 8 venituri dovedite si posibilitate imediata de continuare a activitatiibloc modern si intretinutacces rapid catre 13 decembrie si coresi mallzona linistita dar aproape de toate facilitatile orasuluispatiu bine compartimentat si luminosaceasta proprietate este ideala atat pentru locuit cat si pentru investitie cu potential ridicat de inchiriere pe termen scurt sau lung pentru detalii si programarea unei vizionari nu ezitati sa ma contactati- Caracteristici 2026-03-21
- Tip tranzactie: Vanzare
- Tip imobil: apartamente
- Numar camere: 1
- Suprafata: 45m²
- Oras: Brasov
- Localitate/Adresa: Tractorul
- Zona: Aeroport
