SAD CABINET medicina de familie Simion Barnutiu Lorena
Vanzare
apartamente
67m²
3 camera(e)
ID Anunt: 735059
Descriere
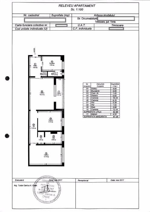
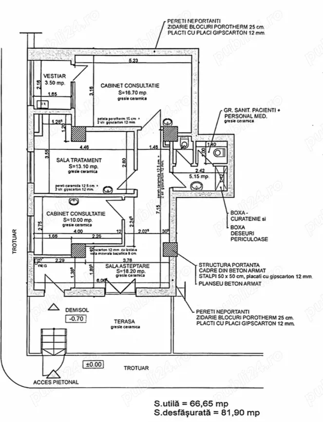
sad cabinet medicina de familie simion barnutiu lorenade vanzare un spatiu cu alta dstinatie in zona simion barnutiu telegrafului lorena sad ce este cu destinatia de cabinet madicina de familie cabinetele sunt functionale in acest moment si sunt dotate si compartimentate dupa toate normele in vigoare ceea ce permite potentialului cumparator sa desfasoare acelasi tip de activitate sau chiar unui investitor sa aiaba in chirie acest domeniu de activitate avand in evdere procedurile tot mai complicate si limitarea sadurilor pe oras acest spatiu ofera posibilitatea inceperii activitatii sau chiar continuarea ei in acest domeniu compartimentarea formata din din 2 cabinete consultatie sala de tratament sala de asteptare vestiar grup sanitar pacienti grup sanitar personal medical boxa curatenie si deseuri periculoase hol si tersa ca si in rlvul atasat cabinetul ramane partial mobilat- Caracteristici 2026-04-27
- Tip tranzactie: Vanzare
- Tip imobil: apartamente
- Numar camere: 3
- Suprafata: 67m²
- Oras: Timisoara
- Localitate/Adresa: Timişoara
- Zona: Aeroport
